إنشاء حساب

أهلاً بك

الاسم الكامل

الدولة

  • أفغانستان +93
  • ألبانيا +355
  • الجزائر +213
  • أندورا +376
  • أنغولا +244
  • الأرجنتين +54
  • أرمينيا +374
  • أستراليا +61
  • النمسا +43
  • أذربيجان +994
  • البحرين +973
  • بنغلاديش +880
  • بيلاروسيا +375
  • بلجيكا +32
  • بليز +501
  • بنين +229
  • بوتان +975
  • بوليفيا +591
  • البوسنة والهرسك +387
  • بوتسوانا +267
  • البرازيل +55
  • بروناي +673
  • بلغاريا +359
  • بوركينا فاسو +226
  • بوروندي +257
  • كمبوديا +855
  • الكاميرون +237
  • كندا +1
  • الرأس الأخضر +238
  • تشاد +235
  • تشيلي +56
  • الصين +86
  • كولومبيا +57
  • جزر القمر +269
  • الكونغو (جمهورية الكونغو الديمقراطية) +243
  • الكونغو +242
  • كوستاريكا +506
  • كرواتيا +385
  • كوبا +53
  • قبرص +357
  • جمهورية التشيك +420
  • الدنمارك +45
  • جيبوتي +253
  • الدومينيكا +1-767
  • جمهورية الدومينيكان +1-809
  • تيمور الشرقية +670
  • الإكوادور +593
  • مصر +20
  • السلفادور +503
  • غينيا الاستوائية +240
  • إريتريا +291
  • إستونيا +372
  • إثيوبيا +251
  • فيجي +679
  • فنلندا +358
  • فرنسا +33
  • الغابون +241
  • غامبيا +220
  • جورجيا +995
  • ألمانيا +49
  • غانا +233
  • اليونان +30
  • غرينادا +1-473
  • غواتيمالا +502
  • غينيا +224
  • غينيا بيساو +245
  • غيانا +592
  • هايتي +509
  • هندوراس +504
  • هنغاريا +36
  • أيسلندا +354
  • الهند +91
  • إندونيسيا +62
  • إيران +98
  • العراق +964
  • أيرلندا +353
  • إسرائيل +972
  • إيطاليا +39
  • ساحل العاج +225
  • جامايكا +1-876
  • اليابان +81
  • الأردن +962
  • كازاخستان +7
  • كينيا +254
  • كيريباتي +686
  • كوريا الجنوبية +82
  • كوريا الشمالية +850
  • الكويت +965
  • قيرغيزستان +996
  • لاوس +856
  • لاتفيا +371
  • لبنان +961
  • ليسوتو +266
  • ليبيريا +231
  • ليبيا +218
  • ليختنشتاين +423
  • ليتوانيا +370
  • لوكسمبورغ +352
  • مدغشقر +261
  • مالاوي +265
  • ماليزيا +60
  • جزر المالديف +960
  • مالي +223
  • مالطا +356
  • جزر مارشال +692
  • موريتانيا +222
  • موريشيوس +230
  • المكسيك +52
  • ميكرونيزيا +691
  • مولدوفا +373
  • موناكو +377
  • منغوليا +976
  • الجبل الأسود +382
  • المغرب +212
  • موزمبيق +258
  • ميانمار +95
  • ناميبيا +264
  • ناورو +674
  • نيبال +977
  • هولندا +31
  • نيوزيلندا +64
  • نيكاراغوا +505
  • النيجر +227
  • نيجيريا +234
  • النرويج +47
  • سلطنة عمان +968
  • باكستان +92
  • بالاو +680
  • بنما +507
  • بابوا غينيا الجديدة +675
  • باراغواي +595
  • بيرو +51
  • الفلبين +63
  • بولندا +48
  • البرتغال +351
  • قطر +974
  • رومانيا +40
  • روسيا +7
  • رواندا +250
  • سانت كيتس ونيفيس +1-869
  • سانت لوسيا +1-758
  • سانت فنسنت وجزر غرينادين +1-784
  • ساموا +685
  • سان مارينو +378
  • ساو تومي وبرينسيبي +239
  • المملكة العربية السعودية +966
  • السنغال +221
  • صربيا +381
  • سيشيل +248
  • سيراليون +232
  • سنغافورة +65
  • سلوفاكيا +421
  • سلوفينيا +386
  • جزر سليمان +677
  • الصومال +252
  • جنوب أفريقيا +27
  • إسبانيا +34
  • سريلانكا +94
  • السودان +249
  • سورينام +597
  • إسواتيني +268
  • السويد +46
  • سويسرا +41
  • سوريا +963
  • تايوان +886
  • طاجيكستان +992
  • تنزانيا +255
  • تايلاند +66
  • توغو +228
  • تونغا +676
  • ترينيداد وتوباغو +1-868
  • تونس +216
  • تركيا +90
  • تركمانستان +993
  • توفالو +688
  • أوغندا +256
  • أوكرانيا +380
  • الإمارات العربية المتحدة +971
  • المملكة المتحدة +44
  • الولايات المتحدة الأمريكية +1
  • أوروغواي +598
  • أوزبكستان +998
  • فانواتو +678
  • فنزويلا +58
  • فيتنام +84
  • اليمن +967
  • زامبيا +260
  • زيمبابوي +263

رقم الهاتف

عند النقر على "استمرار" فإنك توافق على شروط الاستخدام و شروط الاستخدام

هل لديك حساب؟

تسجيل الدخول


أهلاً بك

عند النقر على "استمرار" فإنك توافق على شروط الاستخدام و سياسة الخصوصية

تأكيد رقم الهاتف

ادخل رمز التحقق المرسل إلى الرقم 97068474993834+

إعادة ارسال الرمز :

اضف عنوانك

يرجى تحديد موقعك للحصول على كامل الميزات في الموقع

تسجيل الدخول


أهلاً بك

عند النقر على "استمرار" فإنك توافق على شروط الاستخدام و سياسة الخصوصية

page-blocks.booking-cancel-dialog.title

page-blocks.booking-cancel-dialog.reason (page-blocks.booking-cancel-dialog.optional)

page-blocks.booking-success-dialog.title

page-blocks.booking-success-dialog.description

سجل اهتمامك

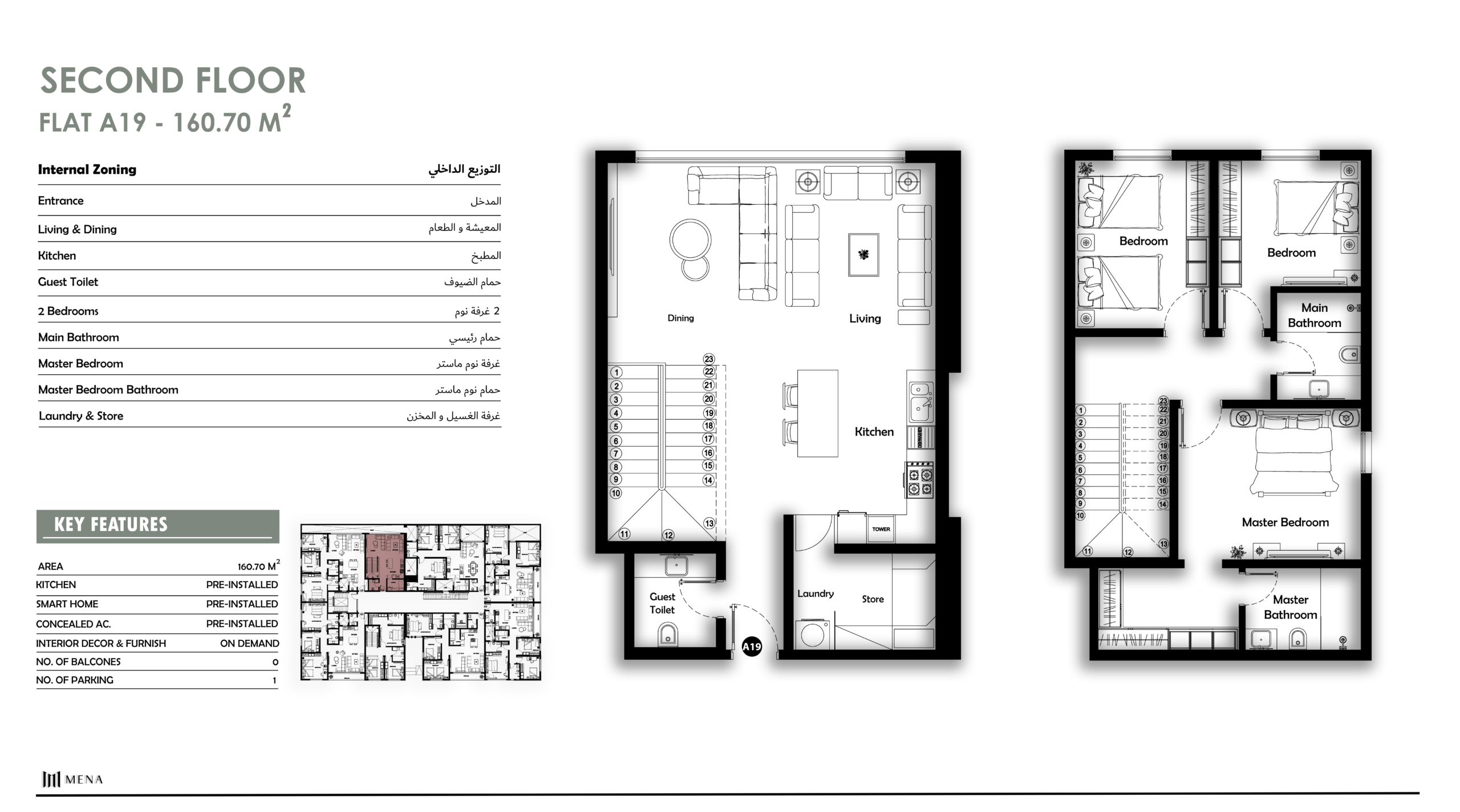
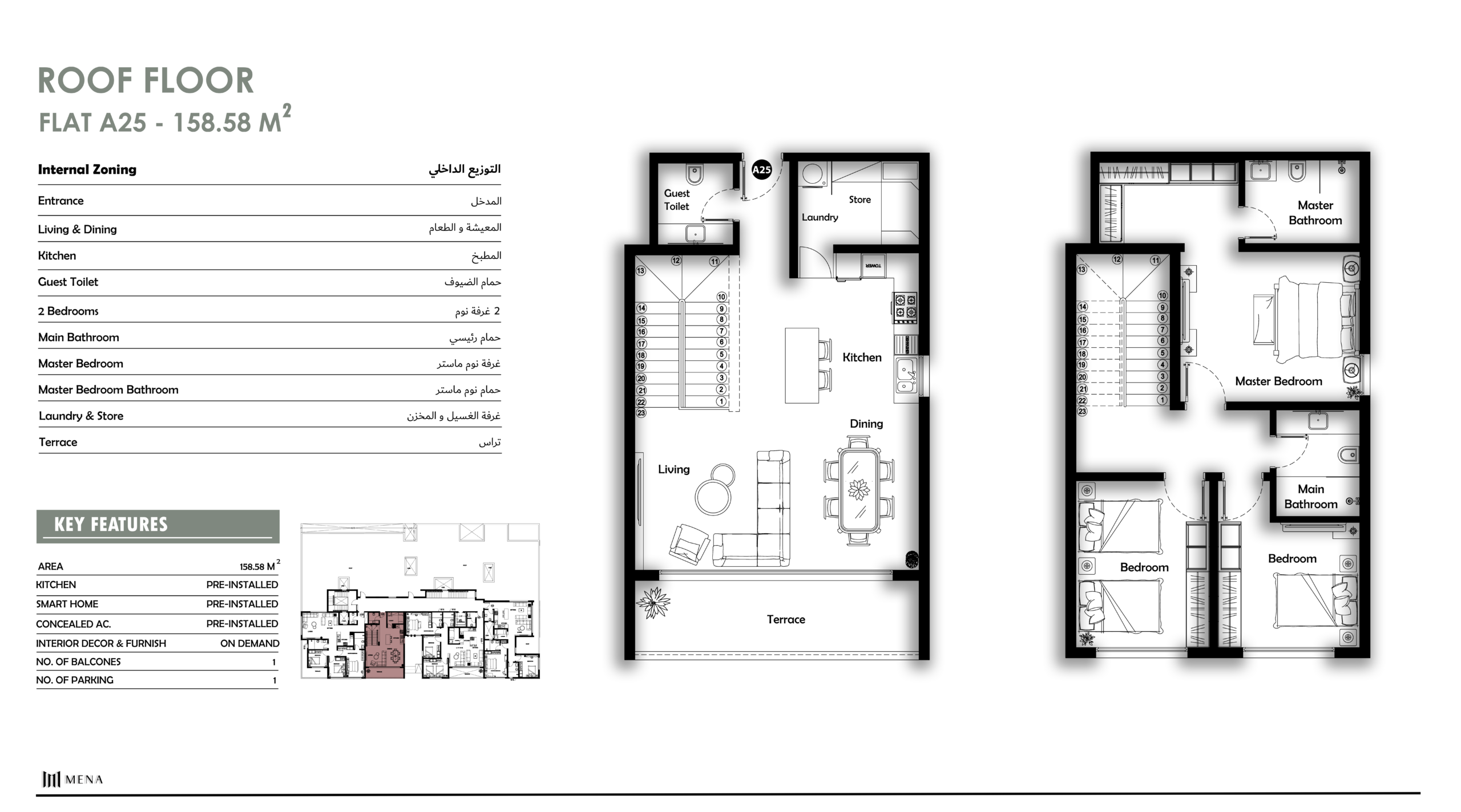
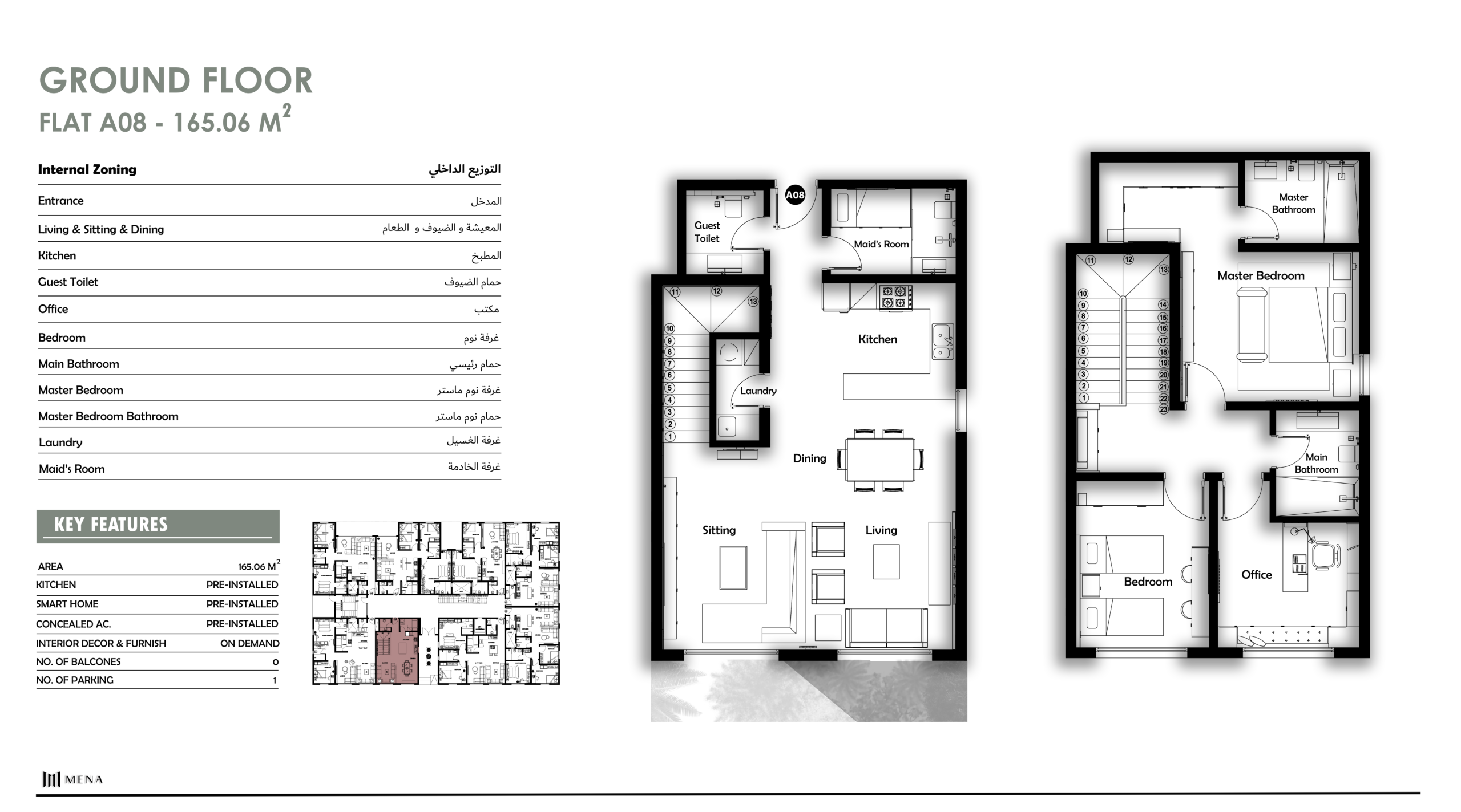
مينا 46 (سليل القيروان)

الرياض - حي القيروان

1,719,000 - 2,260,000
sar image

نظرة عامة

تاريخ النشر

2025-08-21

نوع العقار

مشروع

وصف العقار

يتميز مشروع سليل القيروان بواجهاته العصرية وتصاميمه الاستثنائية ومساحاته الرحبة التي تجمع بين الأناقة والحداثة، لتعيش في عالمٍ تعمه الرفاهية وجودة الحياة المميزة وآفاق تتخطى حدود التوقعات.

تفاصيل العقار

رقم العقار

السعر

عدد الوحدات

عدد الوحدات المباعة

عدد الوحدات المتبقية

405112

1,719,000 - 2,260,000
sar image

25

13

12

رقم ترخيص الاعلان

سنة البناء

نوع العقار

حالة العقار

1000000000

2025-08-21

مشروع

للبيع

العنوان

المدينة

الرياض

الحي

حي القيروان

المميزات والخدمات

ارضيات بورسلان

اضاءات LED

اطقم صحية عالية الجودة

افياش معتمدة

تمديدات سباكة حراري

تمديدات كهربائية معتمدة

دش مطري

دهانات جودة عالية

شترات (بحسب الشقة)

عوازل حرارية

كرسي معلق

مسكات ابواب رقمية

عزل مائي

عوازل حرارية للحوائط

مطابخ عصرية

مغاسل رخامية

نظام داخلي

نوافذ واسعة

صيانة الوِحدة خلال فترة الضمان

اجهزة كشف حرارة ودخان

تمديدات مضخات إطفاء الحريق في كل دور

خزان ارضي بسعة ٢٧٠م

خزان معزول

مضخات اطفاء الحريق

ممرات رخامية

موقع مميز

التسجيل في اتحاد الملاك

الربط مع شركات الصيانة

تأجير الشقة بلا رسوم

الضمانات

الهيكل الانشائي - 10 سنوات

تكييف – 2 سنوات

ضمان المطور الشامل – 6 أشهر

مطابخ – 5 سنوات

سباكة – 15 سنة

فيديو

احصل على مزيد من المعلومات

مركز المبيعات

52%

مباع

number_of_units

25

sold_units

13

remaining_units

12

سجل اهتمامك

1.7m - 2.3m
sar image

book_appointment

Clock Icon

احصل على مزيد من المعلومات

الوحدات في هذا المشروع

تصفح الوحدات السكنية المتوفرة ضمن هذا المشروع واختر الوحدة التي تناسب احتياجاتك.

صورة المشروع
1.9m
sar image
1/1

الرياض - حي القيروان


للبيع
صورة المشروع
1.9m
sar image
1/2

الرياض - حي القيروان


للبيع
صورة المشروع
1.8m
sar image
1/5

الرياض - حي القيروان


للبيع
صورة المشروع
2.0m
sar image
1/6

الرياض - حي القيروان


للبيع
صورة المشروع
2.1m
sar image
2/1

الرياض - حي القيروان


للبيع
صورة المشروع
1.7m
sar image
2/2

الرياض - حي القيروان


للبيع